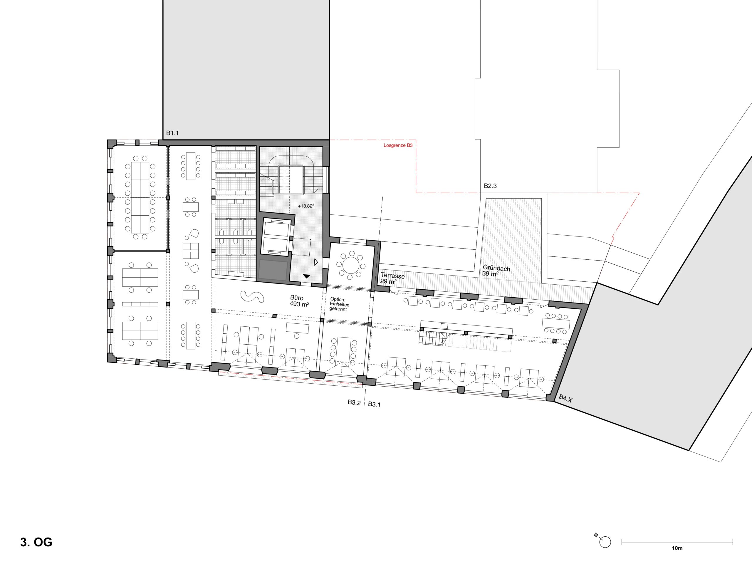
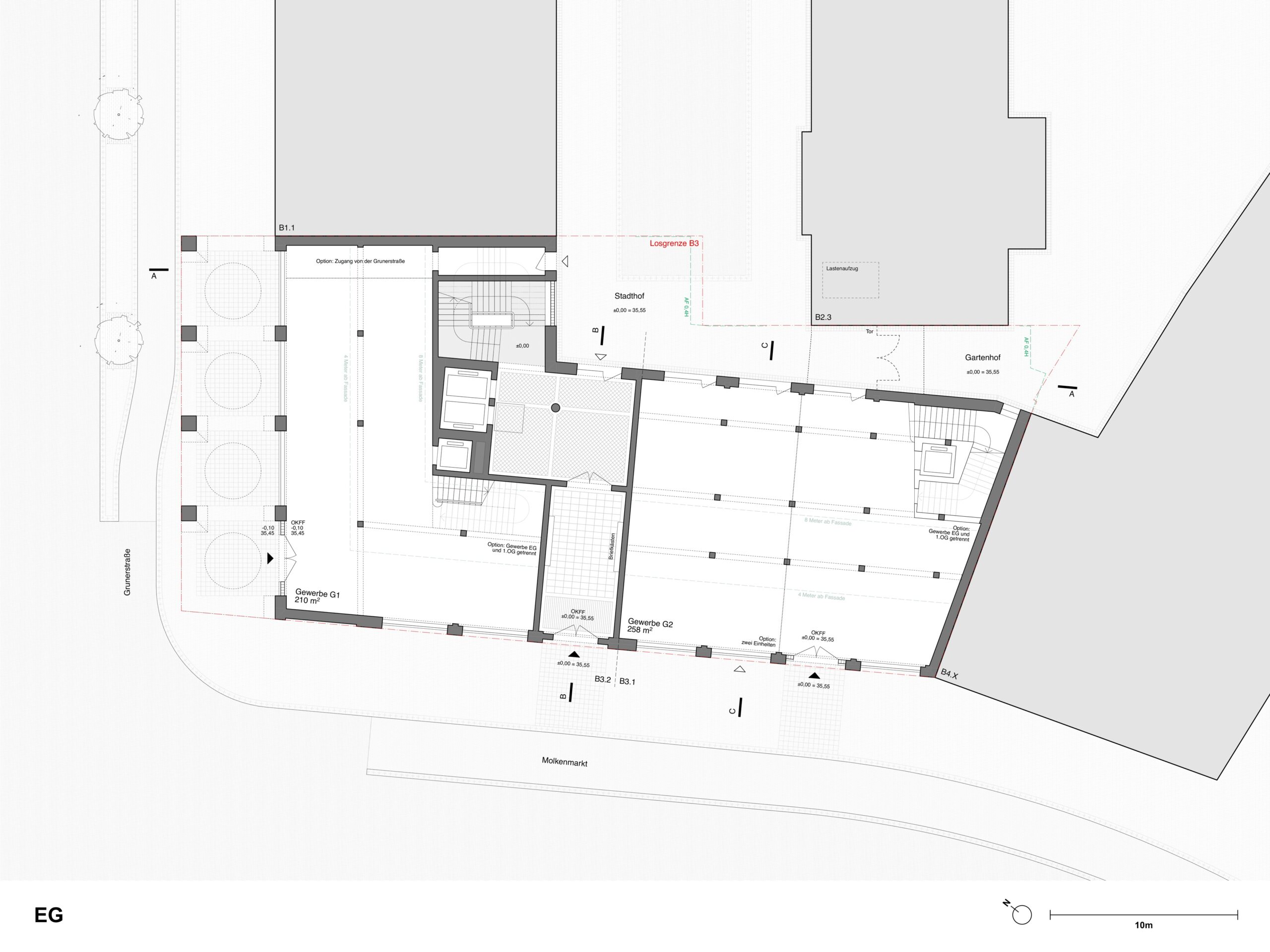
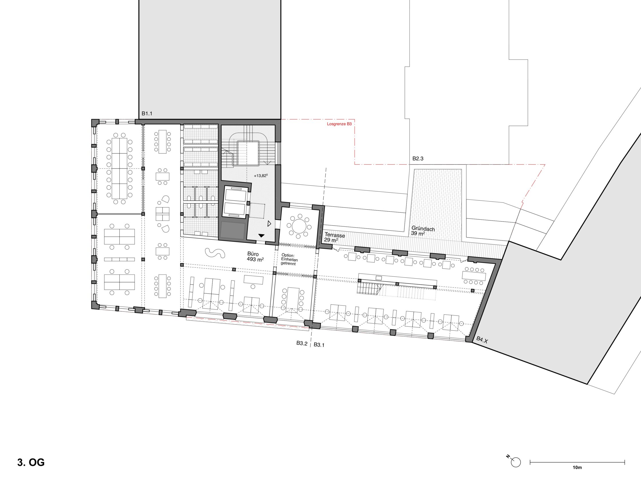
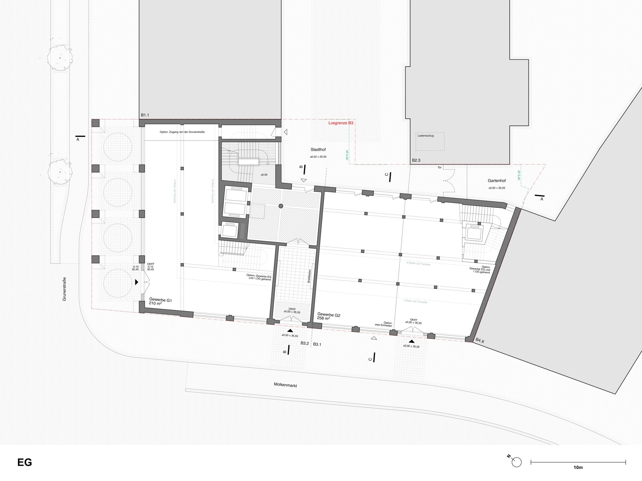
Gegenüber dem Roten Rathaus und dem Nikolaiviertel schließt die geplante Wiederbebauung des Molkenmarkts eine heutige Leerstelle im historischen Zentrum Berlins. Das Gebäude besetzt eine der beiden prominenten Ecken des zukünftigen Blocks B und markiert mit Hochpunkt und Kolonnade den westlichen Auftakt des neuen Quartiers. In ihrer Gliederung separat ablesbare Baukörper fügen sich zu einem städtischen Ensemble. Ein zentrales Treppenhaus ist effiziente Erschließung und repräsentative Mitte zugleich. Die robusten Fassaden aus Kalkstein in fein differenzierter Bearbeitung fassen über alle Geschosse flexibel schaltbare Flächen für Gewerbe, Kultur und Büros und prägen diesen wiedererkennbaren Stadtbaustein.
In seiner Lage übernimmt der Bau eine Scharnierfunktion. Er vermittelt zwischen den repräsentativen Solitären und großmaßstäblichen Stadträumen einerseits und dem bereits zu DDR-Zeiten kleinteilig rekonstruierten Nikolaiviertel andererseits. So bildet das entlang des geschwungenen Straßenverkaufs weithin sichtbare Eckgebäude einen respektvollen und doch selbstbewussten Hochpunkt vis-à-vis dem Roten Rathaus, während die vorgelagerte Kolonnade den Stadtraum fasst und ihn als Schwellenraum nach innen überführt.
Das tiefe Relief der Natursteinfassade nimmt die städtische Materialität auf. Feine Unterscheidungen in der Oberfläche verweisen auf die Ambivalenz zwischen kleinteiliger Überlagerung und zusammenhängendem Stadtbaustein. Rohes Aluminium präzisiert den Übergang zwischen Stein und Öffnung. Die Zugänge vom öffentlichen Raum bilden Nischen zwischen Trubel und innerer Welt. Die transparenten Gewerbeeinheiten sind damit autark und doch fest in der Stadt verankert. Zur Adressbildung der Obergeschosse wird der steinerne Sockel nach innen geführt. Die präzise Raumsequenz aus Entree, Foyer und sichtbarem Treppenantritt kündigt die zentrale, tageslichtgefasste Vertikalerschließung an. Der wechselnde Blick in den Stadthof verleiht jeder Einheit eine repräsentative und wiedererkennbare Willkommensgeste.
Eine klare, schaltbare Struktur erlaubt große und kleine Nutzungseinheiten. Über mehrere Geschosse intern verbundene Büros können ebenso aufgenommen werden, wie kleinteilige Zellen oder kulturelle Programme. Es entsteht ein Haus, das historische Maßstäbe respektiert und zugleich neue urbane Nutzungen ermöglicht.