Am Molkenmarkt B/1 Berlin

2025

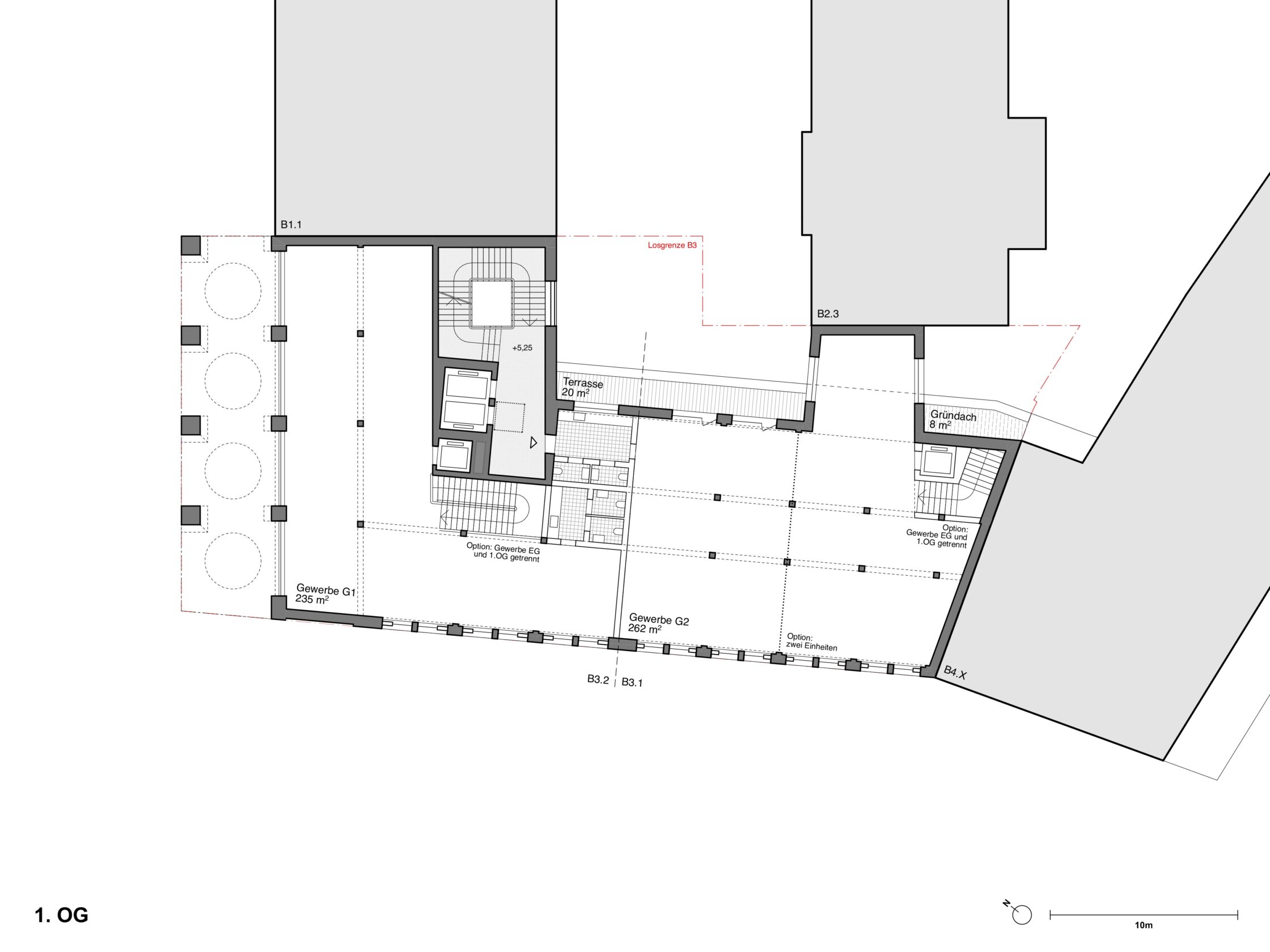
Opposite the Red Town Hall and the Nikolaiviertel, the planned redevelopment of Molkenmarkt will fill a gap in Berlin’s historic center. The building occupies one of the two prominent corners of the future Block B and, with its high point and colonnade, marks the western entrance to the new quarter. Separately identifiable structures come together to form an urban ensemble. A central staircase provides efficient access and serves as a representative centerpiece. The robust limestone facades, with their finely differentiated finish, enclose flexible spaces for commercial, cultural, and office use across all floors, shaping this recognizable urban building block.

mehr
  • Location: Berlin
  • Competition: 2025
  • Gross Floor Space: 4.500 m2
  • Awarded by: WBM Wohnungsbaugesellschaft Berlin-Mitte mbH in cooperation with Senate Department for Urban Development, Construction, and Housing
  • Projectteam dreisterneplus: Florian Hartmann, Andreas Müsseler, Oliver Noak and Lisa Yamaguchi with Quirin Goßlau, Sarah Randlkofer, Florian Söllner
  • Projectteam Fink + Jocher: Dietrich Fink with David Fritz, Amelie Kitz, Jan Würfel