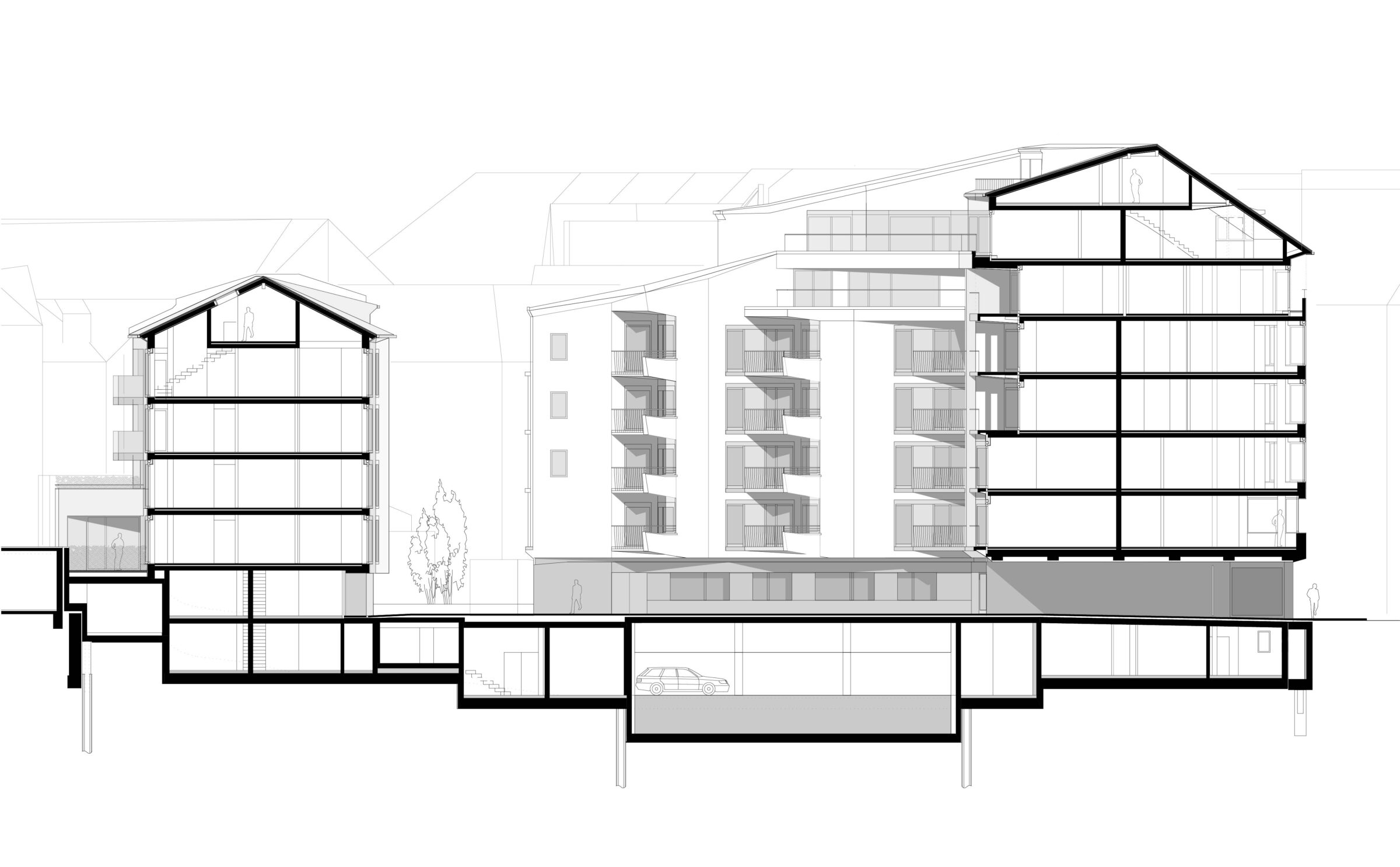
Altheimer Eck
Die Parzelle und ihre Umgebung wird wesentlich von der spätmittelalterlichen, äußerst schmalen Parzellenstruktur mit großer Tiefe sowie die unmittelbare Nähe zur Klosteranlage des Damenstifts St. Anna auf der Südseite geprägt. Unser Entwurf führte zunächst die in der unmittelbaren Umgebung vorgefundene Bebauung in die Grundstückstiefe fort und orientierte sich dabei im wesentlichen an dem durch die Nachbarbebauung vorgegebenen und durch Baugrenze bzw. Baulinien ordnungsrechtlich nachgezeichneten historischen Baufeld.
- Ort: München
- Projekt: 2012
- Bauherr: Planbaumanufaktur GmbH & Co. KG, Seefeld
- Projektteam: Florian Hartmann, Andreas Müsseler, Oliver Noak , Lisa Yamaguchi mit Marcel Meili, Markus Peter, Felix Krüttli, Markus Reher, Benjamin Süß















